Portfólio

Res. Paloma - Ortigueira - PR

Duas residências geminadas compreendendo 120,74 m², possuindo em cada habitação dois quartos, um banheiro social, esses com pé direito de 3,00 m, sala e cozinha conjugadas com pé direito de 4,00 m e lavanderia externa.

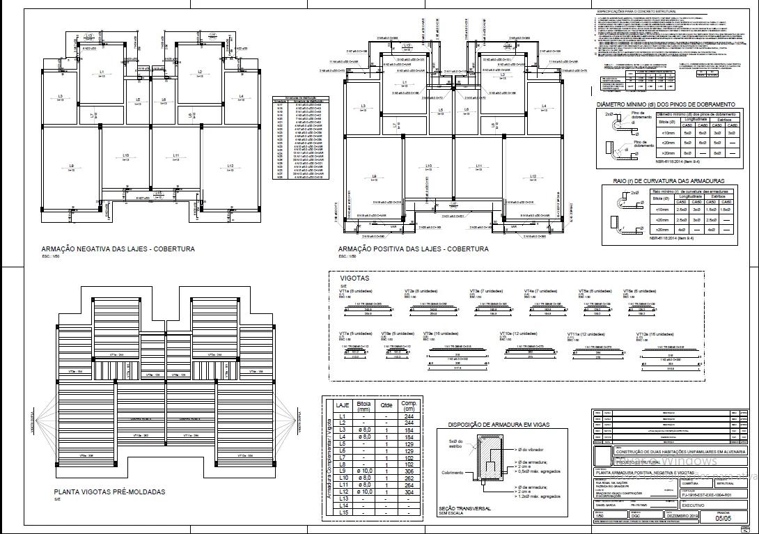
Estrutura em concreto armado com fck 25 MPa, tendo em sua concepção estrutural, estacas escavadas do tipo broca de 3,50 m de profundidade e diâmetro de 25 cm, 30 pilares com aço 10 mm, lajes treliçadas com armadura complementar de combate à fluência do concreto e vigas invertidas na sala/cozinha para o teto ficar com uma superfície sem vigas aparentes.

Res. Londres - Fazenda Rio Grande - PR

Residência com 50 m², dois quartos, sala e cozinha conjugadas, um banheiro, lavanderia externa e pé direito de 2,60 m.

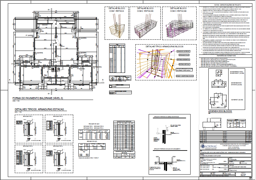
Estrutura em concreto armado com fck 25 MPa, tendo em sua concepção estrutural, bloco sobre estacas escavadas do tipo broca, com uma a três unidades por bloco, 6,0 m de profundidade e diâmetro de 25 cm, 12 pilares com aço 10 mm e lajes treliçadas com armadura complementar de combate à fluência do concreto.

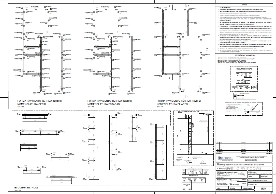
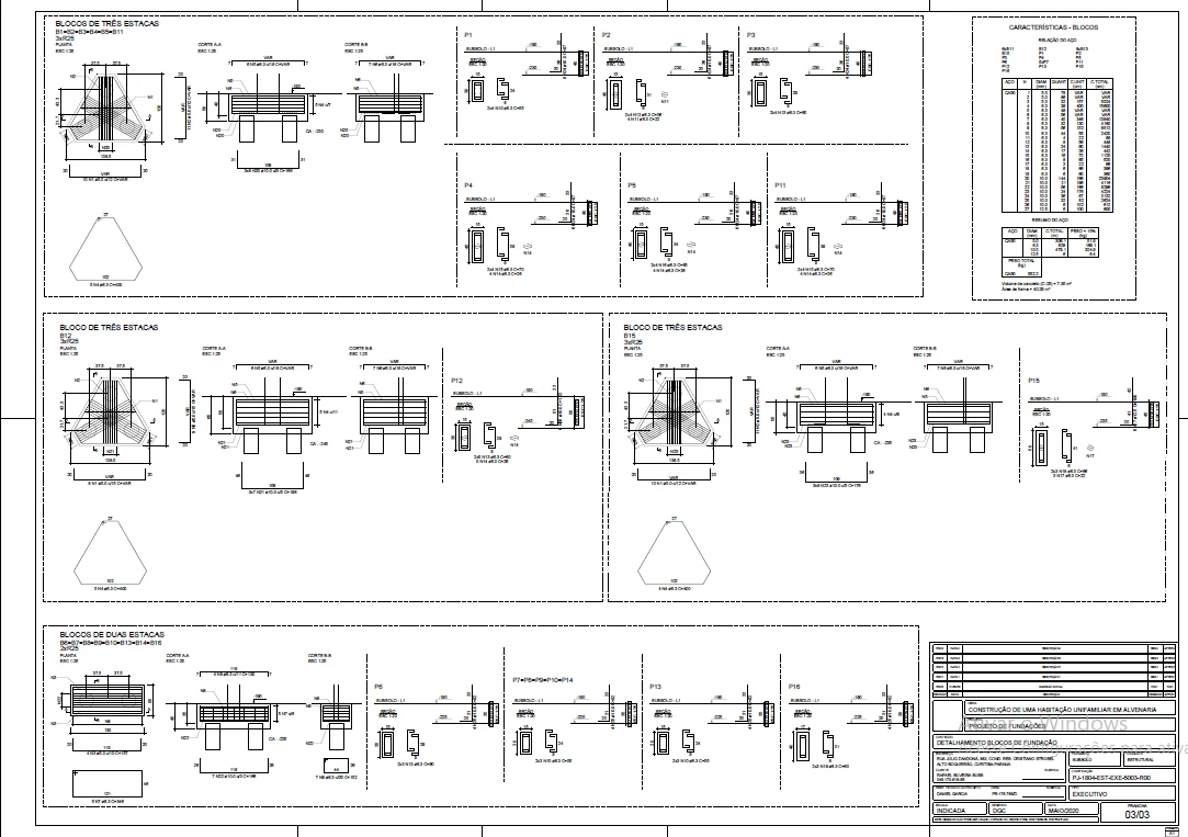
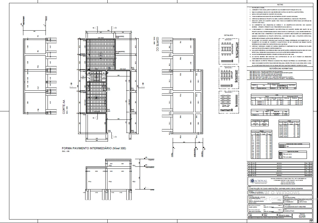
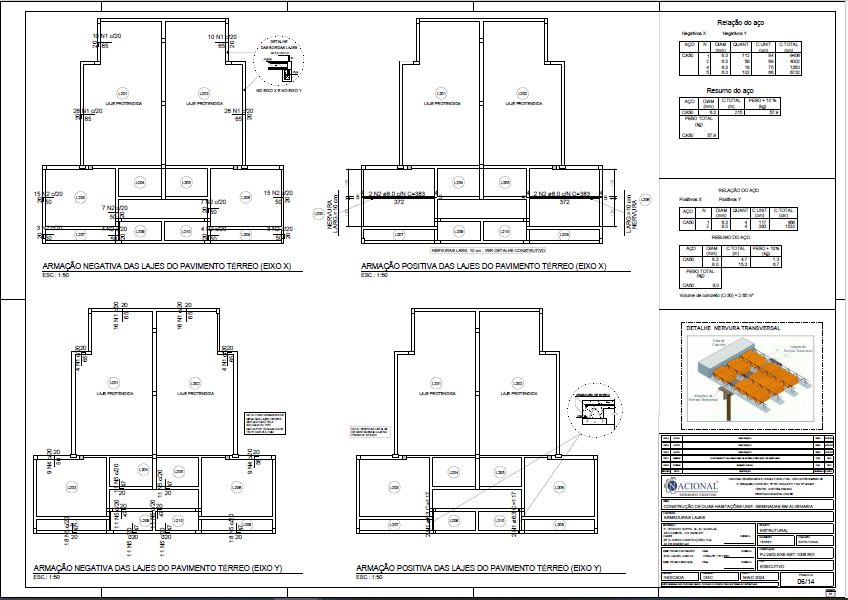
Res. Eslovênia - Fazenda Rio Grande - PR

Conjunto de duas habitações unifamiliares geminadas compreendendo 113,20 m² no total, cada qual com uma suíte, dois quartos, banheiro social e privativo, sala e cozinha conjugadas, lavanderia externa e pé direito de 2,60 m.

Estrutura em concreto armado com fck 25 MPa, tendo em sua concepção estrutural, bloco sobre estacas escavadas do tipo broca, com uma a três unidades por bloco, 6,0 m de profundidade e diâmetro de 25 cm, 20 pilares com aço 10 mm, lajes treliçadas com armadura complementar de combate à fluência do concreto e vigas invertidas na sala/cozinha para o teto ficar com uma superfície sem vigas aparentes.

Res. Roma - Fazenda Rio Grande - PR

Conjunto de quatro edificações residenciais geminadas totalizando 189,76 m², cada unidade com dois quartos, banheiro social, sala e cozinha conjugadas, lavanderia externa e pé direito de 2,65 m.

Estrutura em concreto armado com fck 25 MPa, tendo em sua concepção estrutural, bloco sobre estacas escavadas do tipo broca, com uma a três unidades por bloco, 6,0 m de profundidade e diâmetro de 25 cm, 38 pilares com aço 10 mm, lajes treliçadas com armadura complementar de combate à fluência do concreto e vigas invertidas na sala/cozinha para o teto ficar com uma superfície sem vigas aparentes.

Triplex - Curitiba - PR: projeto estrutural e fundações

Estrutura em concreto armado com fck 25 MPa, tendo em sua concepção estrutural, estacas escavadas do tipo broca de 3,50 m de profundidade e diâmetro de 25 cm, 30 pilares com aço 10 mm, lajes treliçadas com armadura complementar de combate à fluência do concreto e vigas invertidas na sala/cozinha para o teto ficar com uma superfície sem vigas aparentes.

Estrutura em concreto armado com fck 25 MPa, tendo em sua concepção estrutural, bloco sobre estacas escavadas do tipo hélice contínua, com duas ou três unidades por bloco, 6,50 m de profundidade e diâmetro de 25 cm, 16 pilares com aço 10 a 12,5 mm, lajes maciças, lajes treliçadas com armadura complementar de combate à fluência do concreto e vigas invertidas na sala/cozinha para o teto ficar com uma superfície sem vigas aparentes.

Res. Luxemburgo – Fazenda Rio Grande - PR

Residência de 50 m², unidade com dois quartos, banheiro social, sala e cozinha conjugadas, lavanderia externa e pé direito de 2,85 m.

Estrutura em concreto armado com fck 25 MPa, tendo em sua concepção estrutural, bloco sobre estacas escavadas do tipo broca, 4,0 m de profundidade e diâmetro de 25 cm, 13 pilares com aço 10 mm, lajes treliçadas com armadura complementar de combate à fluência do concreto e vigas invertidas na sala/cozinha para o teto ficar com uma superfície sem vigas aparentes.

Projeto de contenção de solo em cortina de estacas e alvenaria estrutural Curitiba - PR

Cortinas de estacas em hélice contínua com diâmetro de 30 cm, fck 30 MPa, ficha de 3,70 m e comprimento total de 6,70 m.

Parede de contenção em alvenaria estrutural armada, com 6,30 m de comprimento e altura de 3,00 m, com bloco de concreto fck,b 8,0 MPa e resistência do graute de 25 MPa, com a utilização de treliças planas entre fiadas alternadas como reforço de combate ao cisalhamento.

Loja de conveniências posto de combustíveis – Itaperuçu- PR

Loja de conveniências para posto de combustíveis com 490,04 m², com são de vendas, banheiros, lavanderia e lava car.


Estrutura em concreto armado com fck 30 MPa, tendo em sua concepção estrutural, já prevendo ampliação futura, bloco sobre estacas escavadas do tipo hélice contínua, de 6 m a 10 m de profundidade e diâmetro de 30 cm, 28 pilares com aço 10 mm e 12,5 mm, lajes treliçadas e protendidas com armadura complementar de combate à fluência do concreto, e com viga de vão livre de 10 m de comprimento em concreto armado.

Res. Jd. Guarujá – Colombo- PR

Residências assobradadas geminadas com o total de 196,52 m² para venda, com dois quartos e uma suíte, 2 banheiros social e 1 privativo, sala e cozinha conjugadas, lavanderia coberta e pé direito de 2,60 cada unidade.

Estrutura em concreto armado com fck 30 MPa, tendo em sua concepção estrutural, bloco sobre estacas escavadas do tipo hélice contínua, 5,0 m de profundidade e diâmetro de 30 cm, 17 pilares com aço 10 mm e 12,5 mm, lajes treliçadas e protendidas com armadura complementar de combate à fluência do concreto.

Estação Elevatória de Esgoto – Cerro Azul- PR

Adequação de projeto de estação elevatória de esgoto promovendo otimização dos materiais e economia em uma concepção reestruturada. Construção com fck 40 MPa, aço e 8 mm e 10 mm e fundação direta em vários níveis de obra.

Conheça nosso clientes e parceiros

Aguarde

POLÍTICA DE COOKIES

Atualizado em 06 de setembro de 2023.

Com a aceitação dos termos da Política de Privacidade de nosso site o usuario/visitante, por meio do botão ACEITO, concorda com as disposições estabelecidas.

O presente termo tem por finalidade esclarecer regras para utilização de dados que incluem mecanismo de acesso, reprodução, arquivamento, processamento, armazenamento, recepção, classificação, utilização, coleta dos dados dos usuários, além do registro das atividades do usuário dentro do domínio.

Armazenamos os dados dos usuários que nos são fornecidos, direta ou indiretamente, durante a utilização de nosso site e aplicativos por meio e cookies, tecnologia que pode perceber e receber informações do usuário com intuito de otimizar sua experiencia em nosso site.

Os dados que poderão ser armazenados são: links e botões clicados, paginas visitadas, endereço IP, informações a respeito do navegador, sistema operacional do dispositivo, resolução da tela, gênero, não se limitando a estes, bem como os dados fornecidos por meio de preenchimento formulários.

Não nos responsabilizamos pela veracidade ou imprecisão dos dados fornecidos pelo usuário. Nosso site utiliza cookies e demais identificadores anônimos para otimização da navegação, segurança e análise de publicidade.

O termo de vigência durante a sessão e também permanentes, cujos dados podem ser utilizados no intuito de lembrar informações de contato no formulário do site para facilitar o seu preenchimento.

Os dados dos usuários poderão ser utilizados com as finalidades de identificação, manutenção de cadastro atualizado para fins de contatos por mensagens e newslatter (com autorização dos usuários) (e-mail, aplicativos e redes sociais), realização de estatísticas e estudos destinados a análise de comportamentos de forma anônima, promoção de conteúdos, anúncios de produtos e/ou serviços.

A utilização dos dados e de sua base são realizados nos limites e destinação das atividades do titular do site, não são repassados ou compartilhados com terceiros.

O usuário concorda que o titular do site poderá utilizar os dados que lhe forem confiados durante a navegação de como forma a otimizar seus serviços com o compromisso de que os dados somente serão acessados pelo titular do site e dos profissionais devidamente autorizados com a finalidade e propósito do site.

Os dados serão armazenados em local seguro, em servidor próprio ou de terceiros, dentro do período de vigência da concordância, sendo que, fica o usuário ciente que nenhum sistema de segurança é inviolável, ficando isento o titular do site de possíveis danos ou prejuízos decorrentes de atuação de terceiros ou vírus, salvo nos casos de dolo do titular do site.

Em caso de denúncias e dúvidas o usuário poderá entrar em contato com as informações presentes no site.

Nós utilizamos cookies para personalizar sua experiência. Ao acessar o site, você concorda com a nossa política de privacidade. OK